
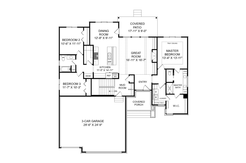
The Sequoia offers 5 bedrooms, 3 baths, and 3,248 sq. ft. of thoughtfully designed living space. With its warm, inviting layout and spacious open-concept design, this home is ideal for both everyday comfort and effortless entertaining. A well-appointed kitchen flows seamlessly into generous living and dining areas, while flexible rooms provide space for work, play, or relaxation. The Sequoia’s refined architectural details and harmonious design create a home that feels both functional and beautifully crafted—perfect for modern living with room to grow.
